Absolute Habitat - Agence Immobiliere Bordeaux - Logo
Absolute Habitat - Agence Immobiliere Bordeaux - Logo
LOCATION
VENTE
Rechercher une location
Recherche avancée
Rechercher une vente
Recherche avancée

A LOUER 0 PIÉCE
à ARCACHON 33120 (Réf : LLOC37)

Retour LOCATION LOCAL COMMERCIAL 0 PIÉCE ARCACHON 33120 2600.00 € / MOIS
  • Photo Annonce
    Photos Annonce Photos Annonce Photos Annonce Photos Annonce
    DESCRIPTION DU BIEN
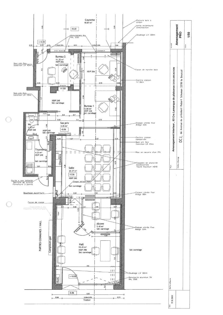
    Dans le centre ville d'Arcachon loue local avec vitrine de 80.30m² + cour de 18.87m² avec terrasse à deux pas du Monoprix d'Arcachon. Axe commercial.
    Local refait à neuf en 2021 et climatisé. Il est composé actuellement d'un accueil, d'une salle de réunion, de 4 bureaux, d'une petite cuisine et d'un wc. EDF en +. Disponible à partir de décembre 2025. Pas de pas de porte ni de droit d'entrée.
    Location tout commerce sauf restauration et/ou nuisances.
    Charges locatives : 70€ (dont eau froide) + TF en +.
    Loyer de 2 670,00 euros par mois charges comprises dont 70,00 euros par mois de provision pour charges (soumis à la régularisation annuelle).
    Les honoraires charge locataire sont de 1 131,00 euros ( soit 14,08 euros/m² ) dont 261,00 euros pour état des lieux ( soit 3,25 euros/m² ).
    Vous pouvez consulter les barèmes d'honoraires à l'adresse suivante :
    http://www.absolutehabitat.com/notre-bareme/
    Les informations sur les risques auxquels ce bien est exposé sont disponibles sur le site Géorisques : https://www.georisques.gouv.fr
    Performances énergétiques
    Consommation énergétique classe V
    Consommation énergétique classe V

    Date de réalisation du diagnostic energétique : Inconnue

    Consommation énergie primaire : Non Communiqué

    Consommation énergie finale : Non Communiqué

    Montant estimé des dépenses annuelles d'énergie pour un usage standard : entre Valeur Inconnue et Valeur Inconnue.

    Prix moyens des énergies indexés en Année Inconnu (abonnement compris).

    À savoir
    NOUS CONTACTER
    Email contact annonce: contact@absolutehabitat.com
    Votre e-mail ne sera partagé avec personne d'autre que nous.
    (*) Champs obligatoire

    Partager cet annonce

    Partager sur les réseaux

    • ABSOLUTE IMMOBILIER - Partager l'annonce avec Facebook
    • ABSOLUTE IMMOBILIER - Partager l'annonce avec Twitter
    • ABSOLUTE IMMOBILIER - Partager l'annonce avec Courriel